| <<
Startseite Häuser - Galerie
Karin’s Loft
Schlicht, einfach, modern, schwebend.
- 70 m² Wohnnutzfläche
- Teilkeller
- Autoabstellplatz unter frei schwebendem Haus
- kostengünstig, platzsparend
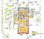
Es sollte klein sein, kostengünstig, schnell gehen, interessant aussehen, und das alles auf einem relativ steilen Hang. Entstanden ist somit ein schlichter länglicher kubischer Raum, der aus dem Erdreich herauswächst, so als wäre er dort angewachsen, verwurzelt. Die Gärten befinden sich oberhalb des Hauses, von denen man direkt auf die Dachterrasse gehen kann.
Alle Räume, also Schlafzimmer, Bad, Küche und Wohnbereich führen auf eine gemeinsame Westpergola, die sowohl als Abschattung gegen die flache Westsonne hilft, aber auch das Leben und Genießen im Freien verschönert, besonders wenn auf der Pergola der Wein wachst.
Dieses durchdachte Platzwunder schwebt mit nur einer Säule frei über die Wiese hinaus, sodass sich darunter „Auto“-matisch ein Autoabstellplatz ergibt – kostenlos, versteht sich.
Das Haus sucht noch immer nach seiner Bewohnerin…
Ein Haus für verlorene Freunde.
|
Auf das Bild klicken,
um dieses zu vergrößern!



|